●雖然是半自動系列,但是主機的所有結構和圖紙張數都是按照全自動的標準去執行,只是比全自動系列機型少給紙部,并不是減少配置、減少結構、減小零件規格的廉價版本。
●提高了牙排體的強度,降低了噪音,活動牙、固定牙做出優化提升,可適于有叼口或無叼口工作。
●提高了側拉規的強度,易損件的使用壽命得到充分的延長和保障。
●重新設計版框,采用吊版和卡版兩用的多功能結構,可依據產品任意選擇,換版更加快捷,使其更有利于后道加工,鎖版加限位裝置,裝卸更加方便。
●前擋規采用傘齒傳動調整方式,有利于提高機器的精準度,調節更加方便。
●側定位采用操作面和傳動面雙向側定位,操作面為固定側定位,與常用的操作面側拉規相適應,傳動面為活動側定位,采用導柱式,對側面精度非常有利。
| 型號 | BMY-2100P |
| 最大輸紙尺寸 | 2110×1510mm |
| 最小輸紙尺寸 | 800×550mm |
| 最大模切尺寸 | 2090×1495mm |
| 最大模切壓力 | 780T |
| 可加工瓦楞紙張 | <10mm |
| 最高運轉速度 | 4000sheets/h |
| 最高清廢速度 | 3800sheets/h |
| 總功率 | 25kw |
| 整機重量 | 37T |
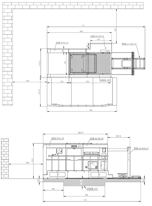
| 外形尺寸 | 10150×6400×2920mm |
| 氣源要求(買方準備) | 0.8Mpa,>0.36m3/min |





